Top.Mail.Ru

Старокачаловская ул., д. 3, к. 2

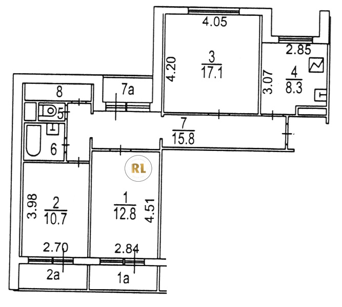
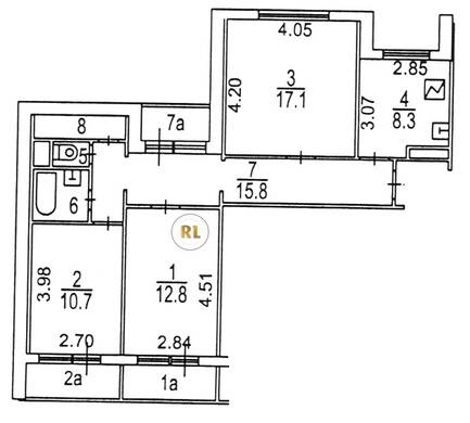
База каталог, Кол-во подъездов: 3, П-55, Москва, Северное Бутово, Пассажирский лифт: 6, От метро: 470, Юго-Западный, да, Наименьшее кол-во этажей: 14, Наибольшее кол-во этажей: 14, Улица Старокачаловская, Кол-во помещений: 161, Кол-во нежилых помещений: 5, Год ввода в эксплуатацию: 1991, 3-комн, Кол-во жилых помещений: 156, дом 3, корпус 2, да, да, да, да, да, да, Грузовых лифтов: 0, Год постройки: 1991, Старокачаловская улица, 37.583454, 55.569260
Свяжитесь со мной на счет цены
10 дн.
T55S569260L37S583454T

На карте


Условия сделки

Источник


Старт продаж

Возможно заинтересует