Top.Mail.Ru

Куликовская ул., д. 3

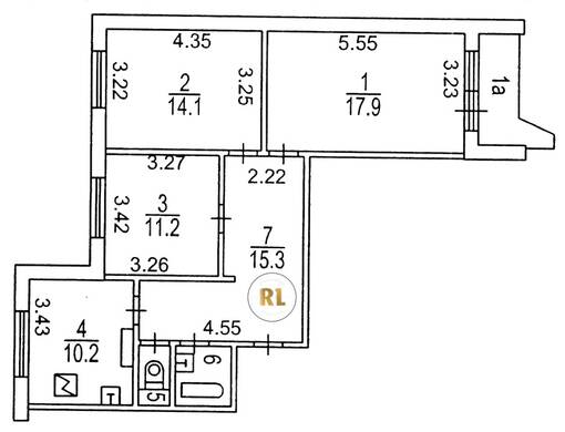
База каталог, Кол-во подъездов: 5, П-44, Москва, Северное Бутово, Площадь парковки: 0, Пассажирский лифт: 5, От метро: 730, Юго-Западный, нет, Наименьшее кол-во этажей: 17, Наибольшее кол-во этажей: 17, Бульвар Дмитрия Донского, Кол-во помещений: 329, Кол-во нежилых помещений: 0, Год ввода в эксплуатацию: 1992, 3-комн, Кол-во жилых помещений: 329, дом 3, нет, да, да, да, да, да, Имеется, Грузовых лифтов: 5, Год постройки: 1991, Куликовская улица, 37.564707, 55.570711
Свяжитесь со мной на счет цены
10 дн.
T55S570711L37S564707T

На карте


Условия сделки

Источник


Старт продаж

Возможно заинтересует