Top.Mail.Ru

Куликовская ул., д. 1

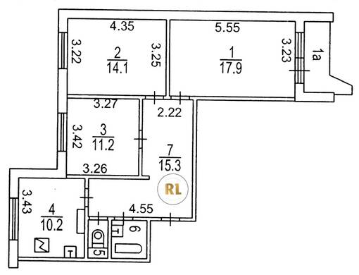
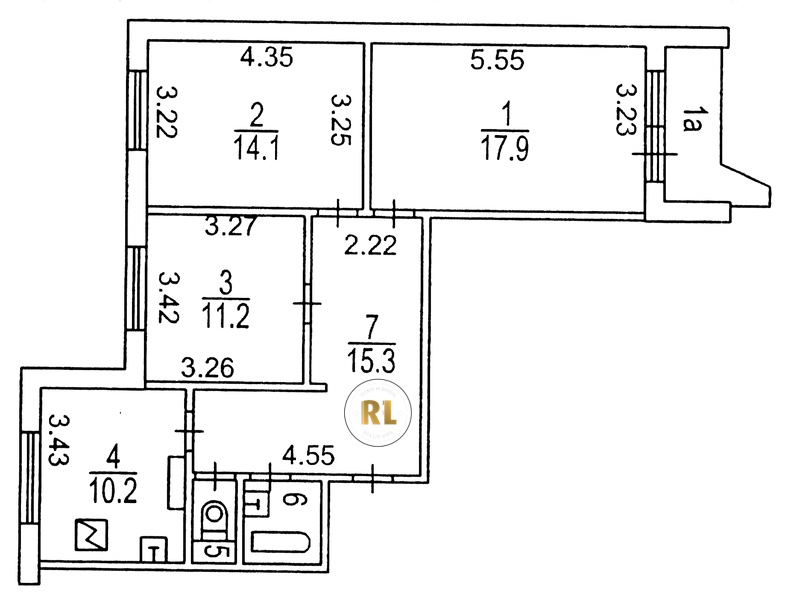
База каталог, Кол-во подъездов: 5, П-44, Москва, Северное Бутово, Площадь парковки: 0, Пассажирский лифт: 5, От метро: 950, Юго-Западный, нет, Наименьшее кол-во этажей: 1, Наибольшее кол-во этажей: 17, Улица Старокачаловская, Кол-во помещений: 328, Кол-во нежилых помещений: 4, Год ввода в эксплуатацию: 1991, 3-комн, Кол-во жилых помещений: 324, Не присвоен, дом 1, нет, да, да, да, да, да, Грузовых лифтов: 5, Год постройки: 1991, Куликовская улица, 37.566126, 55.572894
Свяжитесь со мной на счет цены
10 дн.
T55S572894L37S566126T

На карте


Условия сделки

Источник


Старт продаж

Возможно заинтересует