Top.Mail.Ru

Старобитцевская ул., д. 23, к. 3

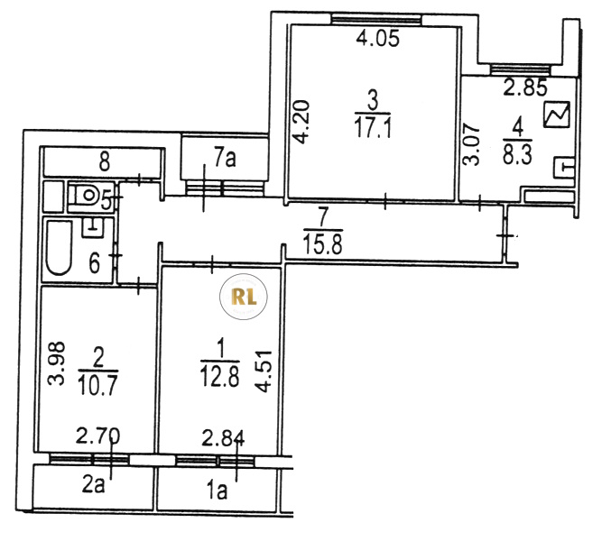
База каталог, Кол-во подъездов: 3, Имеется, П-55, Москва, Северное Бутово, Пассажирский лифт: 3, От метро: 1160, Юго-Западный, да, Наименьшее кол-во этажей: 0, Наибольшее кол-во этажей: 14, Улица Старокачаловская, Кол-во помещений: 137, Кол-во нежилых помещений: 7, Год ввода в эксплуатацию: 1992, 3-комн, Кол-во жилых помещений: 130, Не присвоен, дом 23, корпус 3, нет, да, да, да, да, нет, Имеется, Грузовых лифтов: 3, Год постройки: 1992, Старобитцевская улица, 37.572558, 55.578365
Свяжитесь со мной на счет цены
10 дн.
T55S578365L37S572558T

На карте


Условия сделки

Источник


Старт продаж

Возможно заинтересует