Top.Mail.Ru

Старобитцевская ул., д. 23, к. 2

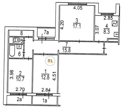
База каталог, Кол-во подъездов: 4, Имеется, П-55, Москва, Северное Бутово, Площадь парковки: 1099, Пассажирский лифт: 8, От метро: 1170, Юго-Западный, да, Наименьшее кол-во этажей: 0, Наибольшее кол-во этажей: 14, Улица Старокачаловская, Кол-во помещений: 185, Кол-во нежилых помещений: 3, Год ввода в эксплуатацию: 1992, 3-комн, Кол-во жилых помещений: 182, Не присвоен, дом 23, корпус 2, нет, да, да, да, да, нет, Имеется, Грузовых лифтов: 0, Год постройки: 1992, Старобитцевская улица, 37.573860, 55.578533
Свяжитесь со мной на счет цены
10 дн.
T55S578533L37S573860T

На карте


Условия сделки

Источник


Старт продаж

Возможно заинтересует