Top.Mail.Ru

Липецкая ул., д. 17, к. 1

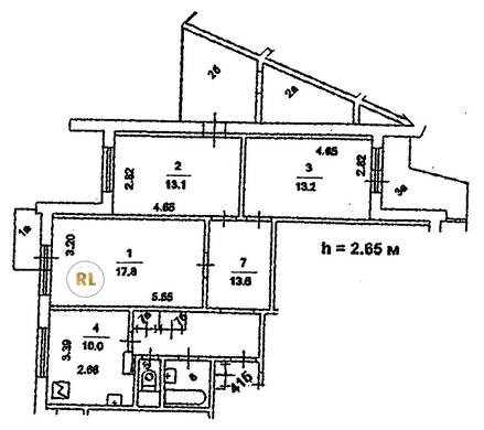
База каталог, Кол-во подъездов: 10, Имеется, П-3/22, Москва, Бирюлево Восточное, Пассажирский лифт: 10, От метро: 4600, Южный, да, Наименьшее кол-во этажей: 1, Наибольшее кол-во этажей: 17, Орехово, Кол-во помещений: 695, Кол-во нежилых помещений: 39, Год ввода в эксплуатацию: 1983, 3-комн, Кол-во жилых помещений: 656, E, дом 17, корпус 1, нет, нет, нет, нет, нет, нет, Имеется, Грузовых лифтов: 10, Год постройки: 1983, Липецкая улица, 37.685790, 55.580101
Свяжитесь со мной на счет цены
10 дн.
T55S580101L37S685790T

На карте


Условия сделки

Источник


Старт продаж

Возможно заинтересует