Top.Mail.Ru

Липецкая ул., д. 46, к. 1

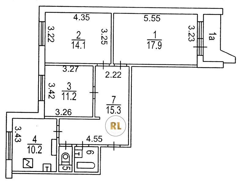
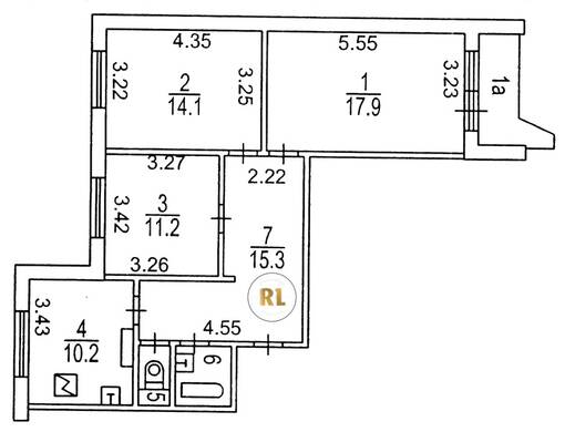
База каталог, Кол-во подъездов: 6, П-44, Москва, Бирюлево Восточное, Площадь парковки: 0, Пассажирский лифт: 6, От метро: 4800, Южный, нет, Наименьшее кол-во этажей: 1, Наибольшее кол-во этажей: 17, Орехово, Кол-во помещений: 417, Кол-во нежилых помещений: 29, Год ввода в эксплуатацию: 1983, 3-комн, Кол-во жилых помещений: 388, D, дом 46, корпус 1, нет, нет, нет, нет, нет, нет, Имеется, Грузовых лифтов: 6, Год постройки: 1983, Липецкая улица, 37.680302, 55.581821
Свяжитесь со мной на счет цены
10 дн.
T55S581821L37S680302T

На карте


Условия сделки

Источник


Старт продаж

Возможно заинтересует