Top.Mail.Ru

Липецкая ул., д. 40

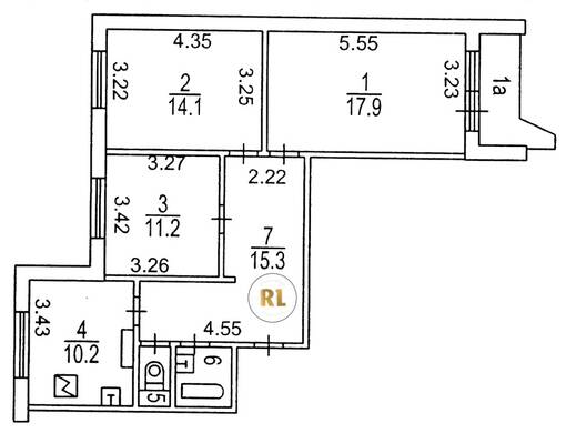
База каталог, Кол-во подъездов: 9, П-44, Москва, Бирюлево Восточное, Площадь парковки: 0, Пассажирский лифт: 9, От метро: 4800, Южный, нет, Наименьшее кол-во этажей: 1, Наибольшее кол-во этажей: 17, Орехово, Кол-во помещений: 625, Кол-во нежилых помещений: 31, Год ввода в эксплуатацию: 1983, 3-комн, Кол-во жилых помещений: 594, D, дом 40, нет, нет, нет, нет, нет, нет, Имеется, Грузовых лифтов: 9, Год постройки: 1983, Липецкая улица, 37.679053, 55.583306
14 990 000 Р
10 дн.
T55S583306L37S679053T
+

На карте


Условия сделки

Источник


Старт продаж