Top.Mail.Ru

Варшавское шоссе, д. 154, к. 2

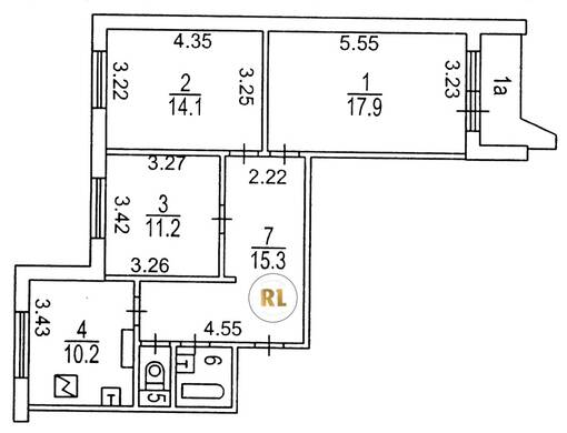
База каталог, Кол-во подъездов: 7, Имеется, П-44, Москва, Чертаново Южное, Площадь парковки: 0, Пассажирский лифт: 7, От метро: 450, Южный, нет, Наименьшее кол-во этажей: 16, Наибольшее кол-во этажей: 16, Аннино, Кол-во помещений: 438, Кол-во нежилых помещений: 3, Год ввода в эксплуатацию: 1983, 3-комн, Кол-во жилых помещений: 435, Не присвоен, дом 154, корпус 2, да, да, да, да, да, да, Имеется, Грузовых лифтов: 7, Год постройки: 1982, Варшавское шоссе, 37.596687, 55.587194
Свяжитесь со мной на счет цены
10 дн.
T55S587194L37S596687T

На карте


Условия сделки

Источник


Старт продаж

Возможно заинтересует