Top.Mail.Ru

город Московский, Солнечная ул., д. 13

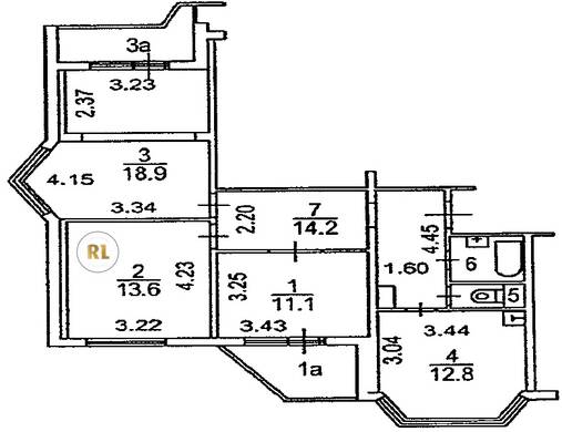
База каталог, Кол-во помещений: 198, Имеется, П-44T, Москва, Московский, Площадь парковки: 0, Пассажирский лифт: 3, От метро: 3500, Новомосковский, нет, Наименьшее кол-во этажей: 17, Наибольшее кол-во этажей: 17, Филатов Луг, Кол-во подъездов: 3, Год ввода в эксплуатацию: 2008, Кол-во нежилых помещений: 6, 3-комн, Кол-во жилых помещений: 192, дом 13, нет, нет, нет, нет, нет, нет, Имеется, Грузовых лифтов: 3, Год постройки: 2008, город Московский, Солнечная улица, 37.370266, 55.589534
Свяжитесь со мной на счет цены
10 дн.
T55S589534L37S370266T

На карте


Условия сделки

Источник


Старт продаж

Возможно заинтересует