Top.Mail.Ru

Варшавское шоссе, д. 152, к. 12

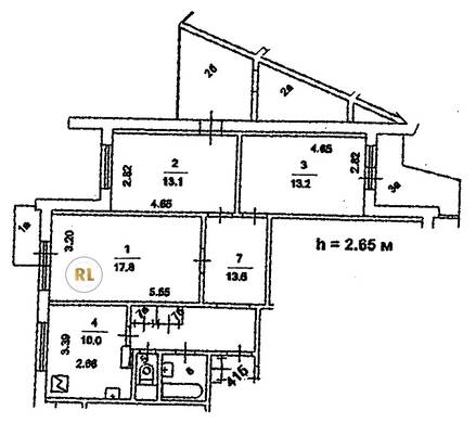
База каталог, Кол-во помещений: 205, Отсутствует, П-3-2/16, Москва, Чертаново Южное, Площадь парковки: 0, Пассажирский лифт: 3, От метро: 710, Южный, нет, Наименьшее кол-во этажей: 17, Наибольшее кол-во этажей: 17, Улица Академика Янгеля, Кол-во подъездов: 3, Год ввода в эксплуатацию: 1993, Кол-во нежилых помещений: 2, 3-комн, Кол-во жилых помещений: 203, дом 152, корпус 12, нет, да, да, да, да, да, Имеется, Грузовых лифтов: 3, Год постройки: 1993, Варшавское шоссе, 37.595869, 55.590267
Свяжитесь со мной на счет цены
10 дн.
T55S590267L37S595869T

На карте


Условия сделки

Источник


Старт продаж

Возможно заинтересует