Top.Mail.Ru

Варшавское шоссе, д. 152, к. 2

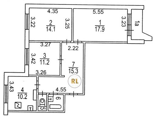
База каталог, Кол-во помещений: 396, Отсутствует, П-44-1/17, Москва, Чертаново Южное, Площадь парковки: 2161, Пассажирский лифт: 6, От метро: 470, Южный, да, Наименьшее кол-во этажей: 17, Наибольшее кол-во этажей: 17, Улица Академика Янгеля, Кол-во подъездов: 6, Год ввода в эксплуатацию: 1997, Кол-во нежилых помещений: 4, 3-комн, Кол-во жилых помещений: 392, дом 152, корпус 2, да, да, да, да, да, да, Имеется, Грузовых лифтов: 6, Год постройки: 1997, Варшавское шоссе, 37.598339, 55.591259
Свяжитесь со мной на счет цены
10 дн.
T55S591259L37S598339T

На карте


Условия сделки

Источник


Старт продаж

Возможно заинтересует