Top.Mail.Ru

город Московский, Солнечная ул., д. 7

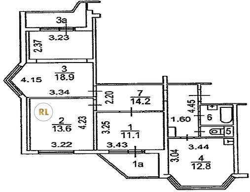
База каталог, Кол-во помещений: 198, Имеется, П-44T, Москва, Московский, Площадь парковки: 0, Пассажирский лифт: 3, От метро: 3400, Новомосковский, нет, Наименьшее кол-во этажей: 17, Наибольшее кол-во этажей: 17, Филатов Луг, Кол-во подъездов: 3, Год ввода в эксплуатацию: 2008, Кол-во нежилых помещений: 6, 3-комн, Кол-во жилых помещений: 192, дом 7, нет, нет, нет, нет, нет, нет, Имеется, Грузовых лифтов: 3, Год постройки: 2008, город Московский, Солнечная улица, 37.368056, 55.591493
Свяжитесь со мной на счет цены
10 дн.
T55S591493L37S368056T

На карте


Условия сделки

Источник


Старт продаж

Возможно заинтересует