Top.Mail.Ru

город Московский, Георгиевская ул., д. 7

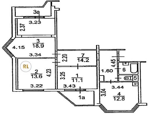
База каталог, Кол-во помещений: 201, Имеется, П-44T, Москва, Московский, Площадь парковки: 0, Пассажирский лифт: 3, От метро: 3200, Новомосковский, нет, Наименьшее кол-во этажей: 17, Наибольшее кол-во этажей: 17, Филатов Луг, Кол-во подъездов: 3, Год ввода в эксплуатацию: 2011, Кол-во нежилых помещений: 0, 3-комн, Кол-во жилых помещений: 201, дом 7, нет, нет, нет, нет, нет, нет, Имеется, Грузовых лифтов: 3, Год постройки: 2011, город Московский, Георгиевская улица, 37.379896, 55.591635
Свяжитесь со мной на счет цены
10 дн.
T55S591635L37S379896T

На карте


Условия сделки

Источник


Старт продаж

Возможно заинтересует