Top.Mail.Ru

город Московский, Московская ул., д. 2

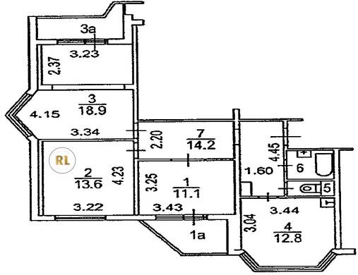
База каталог, Кол-во помещений: 263, Имеется, П-44T, Москва, Московский, Площадь парковки: 0, Пассажирский лифт: 4, От метро: 3300, Новомосковский, нет, Наименьшее кол-во этажей: 17, Наибольшее кол-во этажей: 17, Филатов Луг, Кол-во подъездов: 4, Год ввода в эксплуатацию: 2008, Кол-во нежилых помещений: 7, 3-комн, Кол-во жилых помещений: 256, дом 2, нет, нет, нет, нет, нет, нет, Имеется, Грузовых лифтов: 4, Год постройки: 2008, город Московский, Московская улица, 37.367104, 55.592123
Свяжитесь со мной на счет цены
10 дн.
T55S592123L37S367104T

На карте


Условия сделки

Источник


Старт продаж

Возможно заинтересует