Top.Mail.Ru

Варшавское шоссе, д. 152, к. 4

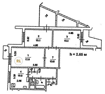
База каталог, Кол-во помещений: 260, Отсутствует, П-3/17, Москва, Чертаново Южное, Площадь парковки: 1066, Пассажирский лифт: 4, От метро: 550, Южный, да, Наименьшее кол-во этажей: 17, Наибольшее кол-во этажей: 17, Улица Академика Янгеля, Кол-во подъездов: 4, Год ввода в эксплуатацию: 1993, Кол-во нежилых помещений: 4, 3-комн, Кол-во жилых помещений: 256, дом 152, корпус 4, да, да, да, да, да, да, Имеется, Грузовых лифтов: 4, Год постройки: 1993, Варшавское шоссе, 37.595429, 55.592307
Свяжитесь со мной на счет цены
10 дн.
T55S592307L37S595429T

На карте


Условия сделки

Источник


Старт продаж

Возможно заинтересует