Top.Mail.Ru

Россошанская ул., д. 2, к. 5

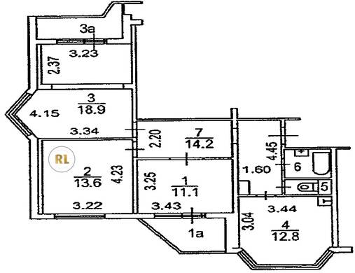
База каталог, Кол-во подъездов: 2, П-44T, Москва, Чертаново Южное, Площадь парковки: 0, Пассажирский лифт: 2, От метро: 320, Южный, нет, Наименьшее кол-во этажей: 17, Наибольшее кол-во этажей: 17, Улица Академика Янгеля, Кол-во помещений: 136, Кол-во нежилых помещений: 1, Год ввода в эксплуатацию: 2003, 3-комн, Кол-во жилых помещений: 135, дом 2, корпус 5, да, да, да, да, да, да, Имеется, Грузовых лифтов: 2, Год постройки: 2003, Россошанская улица, 37.605867, 55.593604
Свяжитесь со мной на счет цены
10 дн.
T55S593604L37S605867T

На карте


Условия сделки

Источник


Старт продаж

Возможно заинтересует