Top.Mail.Ru

Голубинская ул., д. 24, к. 1

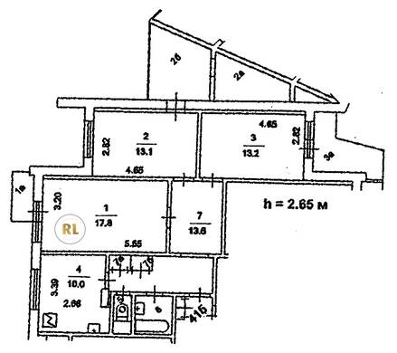
База каталог, Кол-во подъездов: 12, П-3/16, Москва, Ясенево, Пассажирский лифт: 12, От метро: 1390, Юго-Западный, да, Наименьшее кол-во этажей: 15, Наибольшее кол-во этажей: 16, Ясенево, Кол-во помещений: 762, Кол-во нежилых помещений: 10, Год ввода в эксплуатацию: 1978, 3-комн, Кол-во жилых помещений: 752, дом 24, корпус 1, нет, да, да, да, да, нет, Имеется, Грузовых лифтов: 12, Год постройки: 1978, Голубинская улица, 37.537353, 55.595994
Свяжитесь со мной на счет цены
10 дн.
T55S595994L37S537353T

На карте


Условия сделки

Источник


Старт продаж

Возможно заинтересует