Top.Mail.Ru

Голубинская ул., д. 29, к. 2

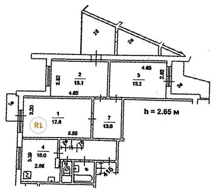
База каталог, Кол-во подъездов: 6, П-3/16, Москва, Ясенево, Площадь парковки: 0, Пассажирский лифт: 6, От метро: 1070, Юго-Западный, нет, Наименьшее кол-во этажей: 16, Наибольшее кол-во этажей: 16, Новоясеневская, Кол-во помещений: 383, Кол-во нежилых помещений: 0, Год ввода в эксплуатацию: 1980, 3-комн, Кол-во жилых помещений: 383, E, дом 29, корпус 2, нет, да, да, да, да, да, Имеется, Грузовых лифтов: 6, Год постройки: 1980, Голубинская улица, 37.541476, 55.596986
Свяжитесь со мной на счет цены
10 дн.
T55S596986L37S541476T

На карте


Условия сделки

Источник


Старт продаж

Возможно заинтересует