Top.Mail.Ru

Дорожная ул., д. 24, к. 1

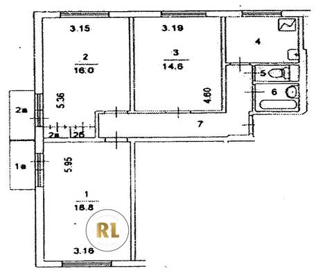
База каталог, Кол-во подъездов: 6, II-49Д, Москва, Чертаново Южное, Площадь парковки: 510, Пассажирский лифт: 6, От метро: 1360, Южный, да, Наименьшее кол-во этажей: 9, Наибольшее кол-во этажей: 9, Улица Академика Янгеля, Кол-во помещений: 213, Кол-во нежилых помещений: 0, Год ввода в эксплуатацию: 1971, 3-комн, Кол-во жилых помещений: 213, дом 24, корпус 1, нет, да, да, да, да, нет, Имеется, Грузовых лифтов: 0, Год постройки: 1971, Дорожная улица, 37.618875, 55.598721
Свяжитесь со мной на счет цены
10 дн.
T55S598721L37S618875T

На карте


Условия сделки

Источник


Старт продаж

Возможно заинтересует