Top.Mail.Ru

Гурьевский проезд, д. 11, к. 1

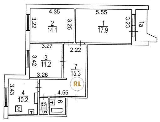
База каталог, Кол-во подъездов: 9, П-44, Москва, Орехово-Борисово Южное, Пассажирский лифт: 9, От метро: 1250, Южный, да, Наименьшее кол-во этажей: 17, Наибольшее кол-во этажей: 17, Зябликово, Кол-во помещений: 609, Кол-во нежилых помещений: 0, Год ввода в эксплуатацию: 1986, 3-комн, Кол-во жилых помещений: 609, дом 11, корпус 1, нет, да, да, да, да, нет, Грузовых лифтов: 9, Год постройки: 1986, Гурьевский проезд, 37.744774, 55.601335
Свяжитесь со мной на счет цены
10 дн.
T55S601335L37S744774T

На карте


Условия сделки

Источник


Старт продаж

Возможно заинтересует