Top.Mail.Ru

Гурьевский проезд, д. 11, к. 2

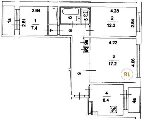
База каталог, Кол-во подъездов: 3, П-30, Москва, Орехово-Борисово Южное, Пассажирский лифт: 6, От метро: 1240, Южный, да, Наименьшее кол-во этажей: 14, Наибольшее кол-во этажей: 14, Зябликово, Кол-во помещений: 167, Кол-во нежилых помещений: 0, Год ввода в эксплуатацию: 1986, 3-комн, Кол-во жилых помещений: 167, дом 11, корпус 2, нет, да, да, да, да, нет, Грузовых лифтов: 0, Год постройки: 1986, Гурьевский проезд, 37.742555, 55.601533
Свяжитесь со мной на счет цены
10 дн.
T55S601533L37S742555T

На карте


Условия сделки

Источник


Старт продаж

Возможно заинтересует