Top.Mail.Ru

Тамбовская ул., д. 10, к. 4

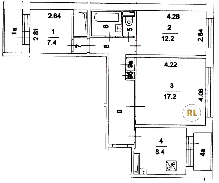
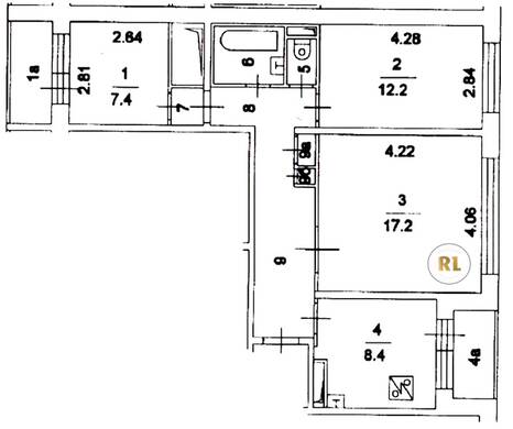
База каталог, Кол-во подъездов: 2, П-30, Москва, Орехово-Борисово Южное, Пассажирский лифт: 4, От метро: 1260, Южный, да, Наименьшее кол-во этажей: 14, Наибольшее кол-во этажей: 14, Зябликово, Кол-во помещений: 111, Кол-во нежилых помещений: 0, Год ввода в эксплуатацию: 1986, 3-комн, Кол-во жилых помещений: 111, дом 10, корпус 4, нет, да, да, да, да, нет, Грузовых лифтов: 0, Год постройки: 1986, Тамбовская улица, 37.744414, 55.602123
Свяжитесь со мной на счет цены
10 дн.
T55S602123L37S744414T

На карте


Условия сделки

Источник


Старт продаж

Возможно заинтересует