Top.Mail.Ru

Новоясеневский проспект, д. 38, к. 1

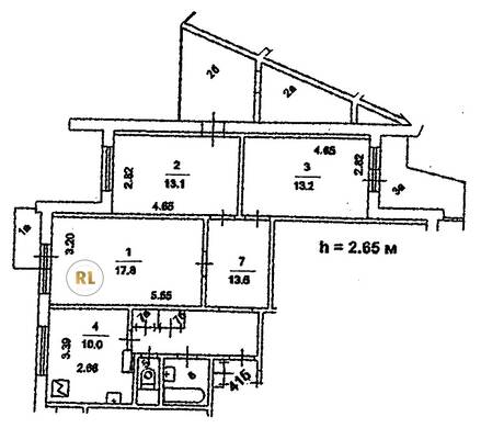
База каталог, Кол-во подъездов: 12, П-3/16, Москва, Ясенево, Площадь парковки: 0, Пассажирский лифт: 12, От метро: 560, Юго-Западный, нет, Наименьшее кол-во этажей: 16, Наибольшее кол-во этажей: 16, Новоясеневская, Кол-во помещений: 771, Кол-во нежилых помещений: 11, Год ввода в эксплуатацию: 1977, 3-комн, Кол-во жилых помещений: 760, E, дом 38, корпус 1, да, да, да, да, да, да, Имеется, Грузовых лифтов: 12, Год постройки: 1977, Новоясеневский проспект, 37.545069, 55.602785
Свяжитесь со мной на счет цены
10 дн.
T55S602785L37S545069T

На карте


Условия сделки

Источник


Старт продаж

Возможно заинтересует