Top.Mail.Ru

Шипиловский проезд, д. 57, к. 2

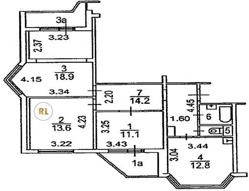
База каталог, Кол-во подъездов: 2, П-44T, Москва, Орехово-Борисово Южное, Пассажирский лифт: 2, От метро: 1160, Южный, да, Наименьшее кол-во этажей: 17, Наибольшее кол-во этажей: 17, Домодедовская, Кол-во помещений: 135, Кол-во нежилых помещений: 0, Год ввода в эксплуатацию: 2000, 3-комн, Кол-во жилых помещений: 135, дом 57, корпус 2, нет, да, да, да, да, нет, Грузовых лифтов: 2, Год постройки: 2000, Шипиловский проезд, 37.707763, 55.603883
Свяжитесь со мной на счет цены
10 дн.
T55S603883L37S707763T

На карте


Условия сделки

Источник


Старт продаж

Возможно заинтересует