Top.Mail.Ru

Варшавское шоссе, д. 144, к. 2

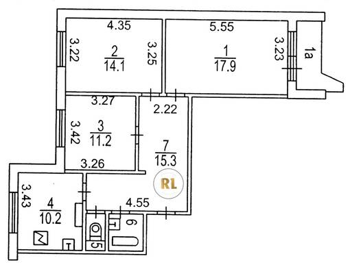
База каталог, Кол-во подъездов: 6, П-44, Москва, Чертаново Центральное, Пассажирский лифт: 6, От метро: 870, Южный, да, Наименьшее кол-во этажей: 0, Наибольшее кол-во этажей: 16, Пражская, Кол-во помещений: 383, Кол-во нежилых помещений: 0, Год ввода в эксплуатацию: 1981, 3-комн, Кол-во жилых помещений: 383, дом 144, корпус 2, нет, да, да, да, да, да, Грузовых лифтов: 6, Год постройки: 1981, Варшавское шоссе, 37.604259, 55.604300
Свяжитесь со мной на счет цены
10 дн.
T55S604300L37S604259T

На карте


Условия сделки

Источник


Старт продаж

Возможно заинтересует