Top.Mail.Ru

пос. Кокошкино, дачный пос. Кокошкино, ул. Дзержинского, д. 15

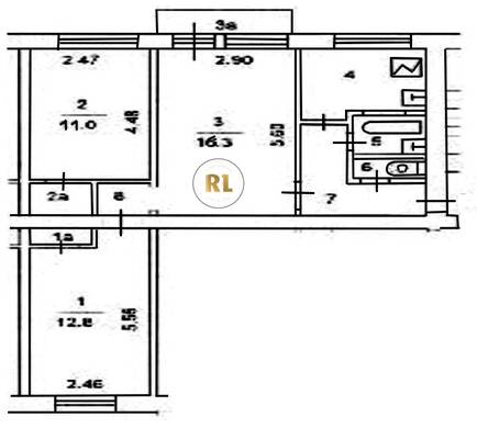
База каталог, Наибольшее кол-во этажей: 5, I-511-4/M-22БИ, Москва, Кокошкино, Пассажирский лифт: 0, Новомосковский, да, Наименьшее кол-во этажей: 5, Кол-во помещений: 100, Год ввода в эксплуатацию: 1973, Кол-во подъездов: 6, Кол-во нежилых помещений: 0, 3-комн, Кол-во жилых помещений: 100, Не присвоен, дом 15, Грузовых лифтов: 0, Год постройки: 1973, поселение Кокошкино, дачный поселок Кокошкино, улица Дзержинского, 37.169214, 55.604778
Свяжитесь со мной на счет цены
10 дн.
T55S604778L37S169214T

На карте


Условия сделки

Источник


Старт продаж

Возможно заинтересует