Top.Mail.Ru

Гурьевский проезд, д. 15, к. 1

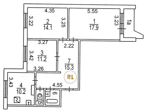
База каталог, Кол-во подъездов: 2, П-44, Москва, Орехово-Борисово Южное, Пассажирский лифт: 2, От метро: 930, Южный, да, Наименьшее кол-во этажей: 17, Наибольшее кол-во этажей: 17, Зябликово, Кол-во помещений: 128, Кол-во нежилых помещений: 0, Год ввода в эксплуатацию: 1987, 3-комн, Кол-во жилых помещений: 128, дом 15, корпус 1, нет, да, да, да, да, да, Грузовых лифтов: 2, Год постройки: 1987, Гурьевский проезд, 37.748547, 55.605022
Свяжитесь со мной на счет цены
10 дн.
T55S605022L37S748547T

На карте


Условия сделки

Источник


Старт продаж

Возможно заинтересует