Top.Mail.Ru

Домодедовская ул., д. 23, к. 1

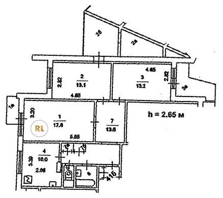
База каталог, Кол-во подъездов: 2, П-3/22, Москва, Орехово-Борисово Южное, Пассажирский лифт: 2, От метро: 660, Южный, да, Наименьшее кол-во этажей: 16, Наибольшее кол-во этажей: 16, Домодедовская, Кол-во помещений: 128, Кол-во нежилых помещений: 0, Год ввода в эксплуатацию: 1975, 3-комн, Кол-во жилых помещений: 128, дом 23, корпус 1, нет, да, да, да, да, да, Грузовых лифтов: 2, Год постройки: 1975, Домодедовская улица, 37.714007, 55.605602
Свяжитесь со мной на счет цены
10 дн.
T55S605602L37S714007T

На карте


Условия сделки

Источник


Старт продаж

Возможно заинтересует