Top.Mail.Ru

Гурьевский проезд, д. 17, к. 2

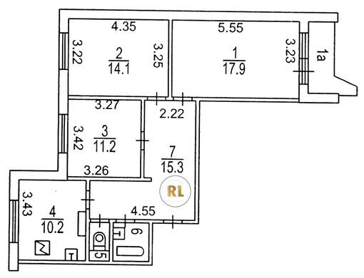
База каталог, Кол-во подъездов: 3, П-44, Москва, Орехово-Борисово Южное, Пассажирский лифт: 3, От метро: 930, Южный, да, Наименьшее кол-во этажей: 17, Наибольшее кол-во этажей: 17, Зябликово, Кол-во помещений: 203, Кол-во нежилых помещений: 0, Год ввода в эксплуатацию: 1988, 3-комн, Кол-во жилых помещений: 203, дом 17, корпус 2, нет, да, да, да, да, да, Грузовых лифтов: 3, Год постройки: 1988, Гурьевский проезд, 37.749185, 55.606431
17 800 000 Р
10 дн.
T55S606431L37S749185T
+

На карте


Условия сделки

Источник