Top.Mail.Ru

улица Красного Маяка, д. 17, к. 1

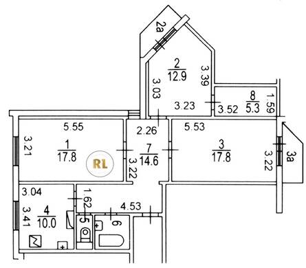
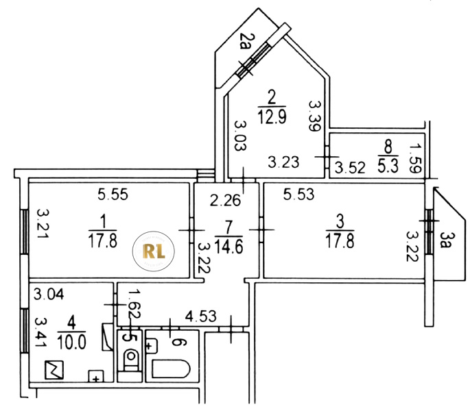
База каталог, Кол-во нежилых помещений: 0, П-ЗМ-1/16, Москва, Чертаново Центральное, Пассажирский лифт: 3, От метро: 1920, Южный, да, Наименьшее кол-во этажей: 17, Наибольшее кол-во этажей: 17, Пражская, Кол-во помещений: 201, Кол-во подъездов: 3, 3-комн, Год ввода в эксплуатацию: 2000, Кол-во жилых помещений: 201, Не присвоен, дом 17, корпус 1, нет, да, да, да, нет, нет, Имеется, Грузовых лифтов: 3, Год постройки: 2000, улица Красного Маяка, 37.579987, 55.606548
Свяжитесь со мной на счет цены
10 дн.
T55S606548L37S579987T

На карте


Условия сделки

Источник


Старт продаж

Возможно заинтересует