Top.Mail.Ru

Шипиловский проезд, д. 53/2

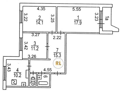
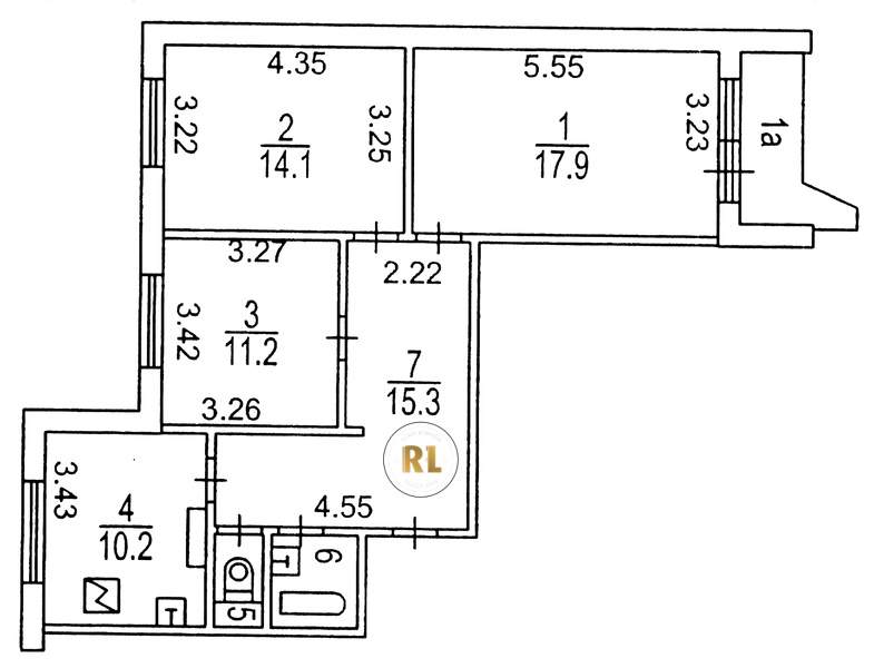
База каталог, Кол-во подъездов: 3, П-44, Москва, Орехово-Борисово Южное, Пассажирский лифт: 3, От метро: 780, Южный, да, Наименьшее кол-во этажей: 17, Наибольшее кол-во этажей: 17, Орехово, Кол-во помещений: 192, Кол-во нежилых помещений: 0, Год ввода в эксплуатацию: 1991, 3-комн, Кол-во жилых помещений: 192, дом 53/2, нет, да, да, да, да, да, Грузовых лифтов: 3, Год постройки: 1991, Шипиловский проезд, 37.701978, 55.606965
Свяжитесь со мной на счет цены
10 дн.
T55S606965L37S701978T

На карте


Условия сделки

Источник


Старт продаж

Возможно заинтересует