Top.Mail.Ru

Гурьевский проезд, д. 19, к. 2

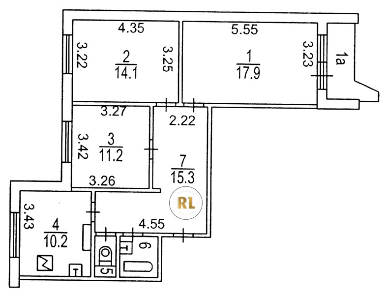
База каталог, Кол-во подъездов: 4, П-44, Москва, Орехово-Борисово Южное, Пассажирский лифт: 4, От метро: 900, Южный, да, Наименьшее кол-во этажей: 17, Наибольшее кол-во этажей: 17, Зябликово, Кол-во помещений: 271, Кол-во нежилых помещений: 0, Год ввода в эксплуатацию: 1987, 3-комн, Кол-во жилых помещений: 271, дом 19, корпус 2, нет, да, да, да, да, да, Грузовых лифтов: 4, Год постройки: 1987, Гурьевский проезд, 37.750200, 55.607122
Свяжитесь со мной на счет цены
10 дн.
T55S607122L37S750200T

На карте


Условия сделки

Источник


Старт продаж

Возможно заинтересует