Top.Mail.Ru

Кировоградская ул., д. 17, к. 2

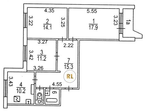
База каталог, Кол-во нежилых помещений: 0, П-44, Москва, Чертаново Центральное, Пассажирский лифт: 5, От метро: 490, Южный, да, Наименьшее кол-во этажей: 16, Наибольшее кол-во этажей: 16, Пражская, Кол-во помещений: 318, Кол-во подъездов: 5, 3-комн, Год ввода в эксплуатацию: 1981, Кол-во жилых помещений: 318, Не присвоен, дом 17, корпус 2, да, да, да, да, да, да, Имеется, Грузовых лифтов: 5, Год постройки: 1981, Кировоградская улица, 37.603424, 55.607214
Свяжитесь со мной на счет цены
10 дн.
T55S607214L37S603424T

На карте


Условия сделки

Источник


Старт продаж

Возможно заинтересует