Top.Mail.Ru

Никулинская ул., д. 9

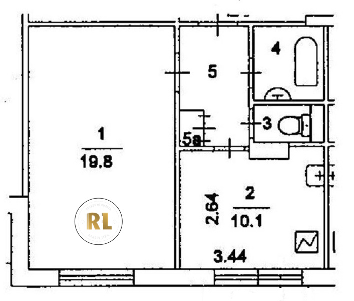
База каталог, Пассажирский лифт: 6, Озёрная, Наибольшее кол-во этажей: 22, Наименьшее кол-во этажей: 1, нет, Западный, От метро: 870, Нет, Кол-во подъездов: 3, Площадь парковки: 0, Тропарево-Никулино, Москва, КОПЭ, Отсутствует, нет, Кол-во помещений: 265, Кол-во нежилых помещений: 8, Год ввода в эксплуатацию: 1993, да, Год постройки: 1993, Нет, Грузовых лифтов: 3, Отсутствует, да, да, да, 1-комн, да, нет, дом 9, Нет, Не присвоен, Кол-во жилых помещений: 257, Никулинская улица, 37.453351, 55.665543
13 800 000 Р
10 дн.
O55S665543L37S453351O
+

На карте


Условия сделки

Источник


Старт продаж