Top.Mail.Ru

Новоясеневский проспект, д. 16, к. 1

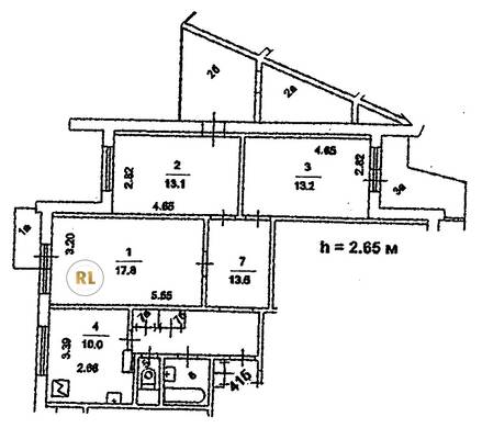
База каталог, Кол-во подъездов: 12, П-3/16, Москва, Ясенево, Площадь парковки: 0, Пассажирский лифт: 12, От метро: 810, Юго-Западный, нет, Наименьшее кол-во этажей: 15, Наибольшее кол-во этажей: 16, Ясенево, Кол-во помещений: 748, Кол-во нежилых помещений: 11, Год ввода в эксплуатацию: 1976, 3-комн, Кол-во жилых помещений: 737, Не присвоен, дом 16, корпус 1, нет, да, да, да, да, да, Имеется, Грузовых лифтов: 12, Год постройки: 1976, Новоясеневский проспект, 37.521327, 55.608129
Свяжитесь со мной на счет цены
10 дн.
T55S608129L37S521327T

На карте


Условия сделки

Источник


Старт продаж

Возможно заинтересует