Top.Mail.Ru

улица Красного Маяка, д. 15, к. 5

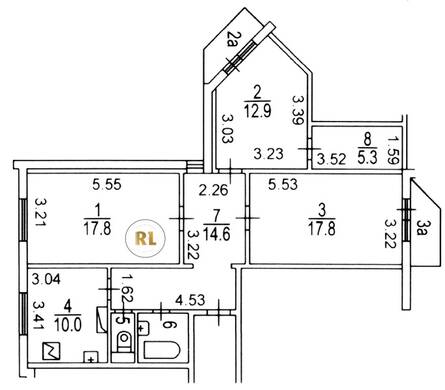
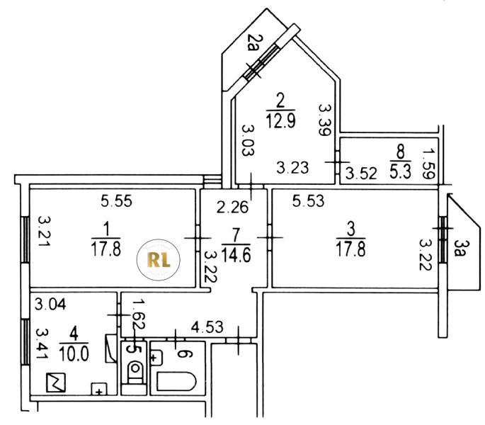
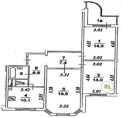
База каталог, Кол-во нежилых помещений: 1, П-ЗМ-3/16, Москва, Чертаново Центральное, Пассажирский лифт: 3, От метро: 1440, Южный, да, Наименьшее кол-во этажей: 14, Наибольшее кол-во этажей: 17, Пражская, Кол-во помещений: 193, Кол-во подъездов: 3, 3-комн, Год ввода в эксплуатацию: 2000, Кол-во жилых помещений: 192, Не присвоен, дом 15, корпус 5, нет, да, да, да, да, нет, Имеется, Грузовых лифтов: 3, Год постройки: 2000, улица Красного Маяка, 37.585970, 55.608139
Свяжитесь со мной на счет цены
10 дн.
T55S608139L37S585970T

На карте


Условия сделки

Источник


Старт продаж

Возможно заинтересует