Top.Mail.Ru

Гурьевский проезд, д. 29, к. 1

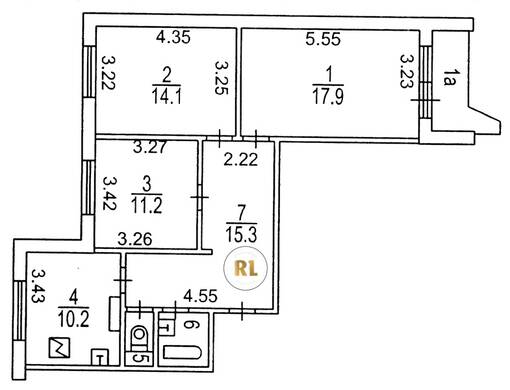
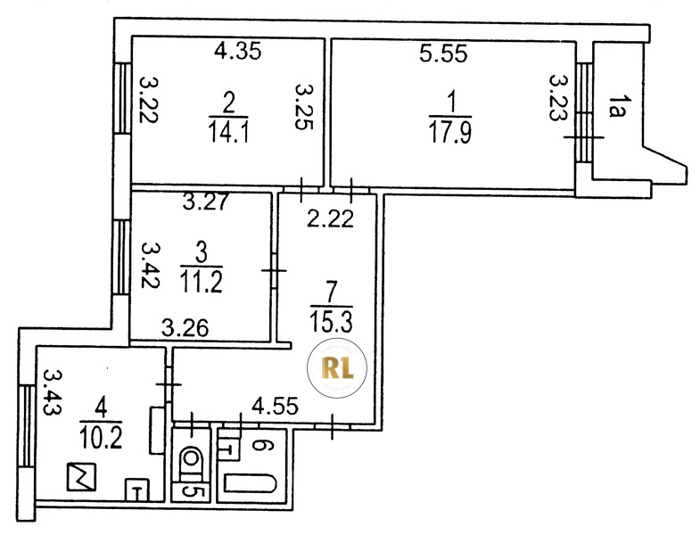
База каталог, Кол-во подъездов: 7, П-44, Москва, Орехово-Борисово Южное, Площадь парковки: 0, Пассажирский лифт: 14, От метро: 980, Южный, нет, Наименьшее кол-во этажей: 1, Наибольшее кол-во этажей: 17, Зябликово, Кол-во помещений: 475, Кол-во нежилых помещений: 1, Год ввода в эксплуатацию: 1986, 3-комн, Кол-во жилых помещений: 474, В, дом 29, корпус 1, нет, да, да, да, да, да, Отсутствует, Грузовых лифтов: 0, Год постройки: 1986, Гурьевский проезд, 37.756623, 55.608439
Свяжитесь со мной на счет цены
10 дн.
T55S608439L37S756623T

На карте


Условия сделки

Источник


Старт продаж

Возможно заинтересует