Top.Mail.Ru

Кировоградская ул., д. 17, к. 1

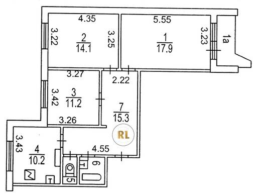
База каталог, Кол-во нежилых помещений: 0, П-44, Москва, Чертаново Центральное, Пассажирский лифт: 6, От метро: 330, Южный, да, Наименьшее кол-во этажей: 16, Наибольшее кол-во этажей: 16, Пражская, Кол-во помещений: 382, Кол-во подъездов: 6, 3-комн, Год ввода в эксплуатацию: 1981, Кол-во жилых помещений: 382, Не присвоен, дом 17, корпус 1, да, да, да, да, да, да, Имеется, Грузовых лифтов: 6, Год постройки: 1981, Кировоградская улица, 37.603927, 55.608729
Свяжитесь со мной на счет цены
10 дн.
T55S608729L37S603927T

На карте


Условия сделки

Источник


Старт продаж

Возможно заинтересует