Top.Mail.Ru

Гурьевский проезд, д. 27, к. 2

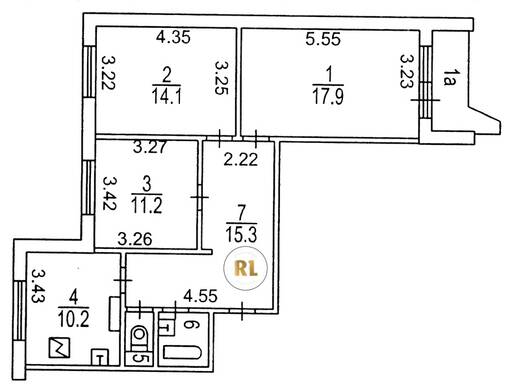
База каталог, Кол-во подъездов: 4, П-44, Москва, Орехово-Борисово Южное, Пассажирский лифт: 4, От метро: 870, Южный, да, Наименьшее кол-во этажей: 17, Наибольшее кол-во этажей: 17, Зябликово, Кол-во помещений: 256, Кол-во нежилых помещений: 0, Год ввода в эксплуатацию: 1986, 3-комн, Кол-во жилых помещений: 256, дом 27, корпус 2, нет, да, да, да, да, да, Грузовых лифтов: 4, Год постройки: 1986, Гурьевский проезд, 37.755751, 55.609253
18 500 000 Р
10 дн.
T55S609253L37S755751T
+

На карте


Условия сделки

Источник


Старт продаж