Top.Mail.Ru

Воронежская ул., д. 3

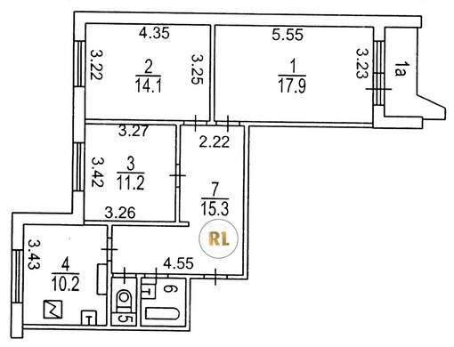
База каталог, Кол-во подъездов: 3, Отсутствует, П-44, Москва, Орехово-Борисово Южное, Площадь парковки: 0, Пассажирский лифт: 6, От метро: 450, Южный, нет, Наименьшее кол-во этажей: 1, Наибольшее кол-во этажей: 17, Домодедовская, Кол-во помещений: 193, Кол-во нежилых помещений: 1, Год ввода в эксплуатацию: 1987, 3-комн, Кол-во жилых помещений: 192, В, дом 3, да, да, да, да, да, да, Отсутствует, Грузовых лифтов: 0, Год постройки: 1987, Воронежская улица, 37.725164, 55.609675
Свяжитесь со мной на счет цены
10 дн.
T55S609675L37S725164T

На карте


Условия сделки

Источник


Старт продаж

Возможно заинтересует