Top.Mail.Ru

Воронежская ул., д. 5

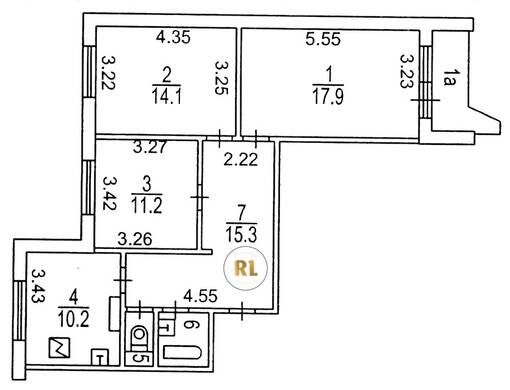
База каталог, Кол-во подъездов: 3, П-44, Москва, Орехово-Борисово Южное, Пассажирский лифт: 3, От метро: 500, Южный, да, Наименьшее кол-во этажей: 0, Наибольшее кол-во этажей: 17, Домодедовская, Кол-во помещений: 203, Кол-во нежилых помещений: 0, Год ввода в эксплуатацию: 1989, 3-комн, Кол-во жилых помещений: 203, дом 5, да, да, да, да, да, да, Грузовых лифтов: 3, Год постройки: 1989, Воронежская улица, 37.726619, 55.609736
Свяжитесь со мной на счет цены
10 дн.
T55S609736L37S726619T

На карте


Условия сделки

Источник


Старт продаж

Возможно заинтересует