Top.Mail.Ru

Шипиловский проезд, д. 45, к. 1

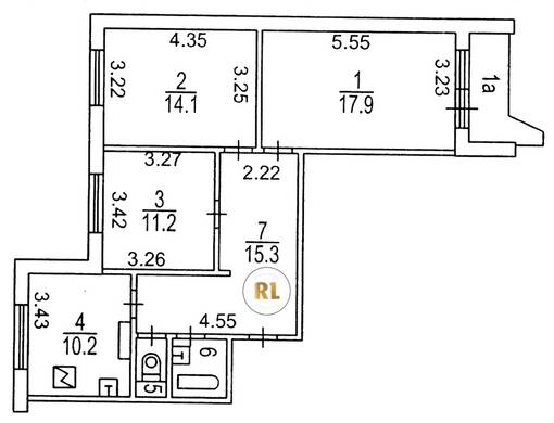
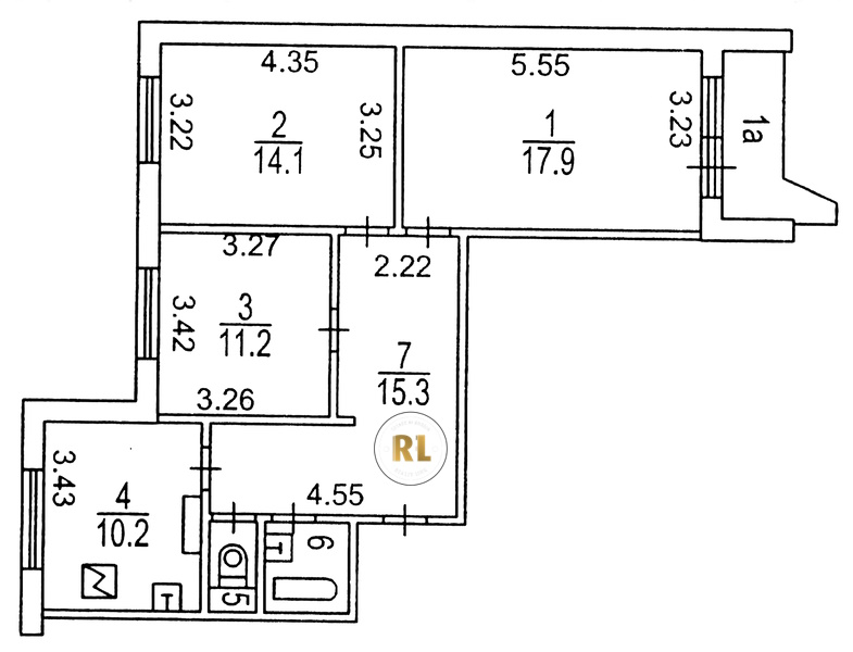
База каталог, Кол-во подъездов: 3, П-44, Москва, Орехово-Борисово Северное, Площадь парковки: 0, Пассажирский лифт: 3, От метро: 340, Южный, нет, Наименьшее кол-во этажей: 0, Наибольшее кол-во этажей: 17, Орехово, Кол-во помещений: 193, Кол-во нежилых помещений: 2, Год ввода в эксплуатацию: 1989, 3-комн, Кол-во жилых помещений: 191, дом 45, корпус 1, да, да, да, да, да, да, Имеется, Грузовых лифтов: 3, Год постройки: 1989, Шипиловский проезд, 37.698008, 55.609990
Свяжитесь со мной на счет цены
10 дн.
T55S609990L37S698008T

На карте


Условия сделки

Источник


Старт продаж

Возможно заинтересует