Top.Mail.Ru

Воронежская ул., д. 9

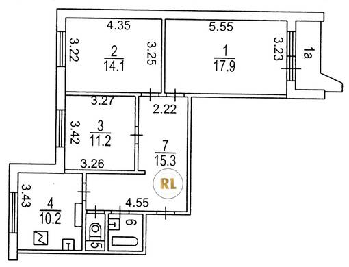
База каталог, Кол-во подъездов: 2, П-44, Москва, Орехово-Борисово Южное, Пассажирский лифт: 2, От метро: 710, Южный, да, Наименьшее кол-во этажей: 17, Наибольшее кол-во этажей: 17, Домодедовская, Кол-во помещений: 128, Кол-во нежилых помещений: 0, Год ввода в эксплуатацию: 1987, 3-комн, Кол-во жилых помещений: 128, дом 9, нет, да, да, да, да, да, Грузовых лифтов: 2, Год постройки: 1987, Воронежская улица, 37.729529, 55.610392
Свяжитесь со мной на счет цены
10 дн.
T55S610392L37S729529T

На карте


Условия сделки

Источник


Старт продаж

Возможно заинтересует