Top.Mail.Ru

Воронежская ул., д. 11/4

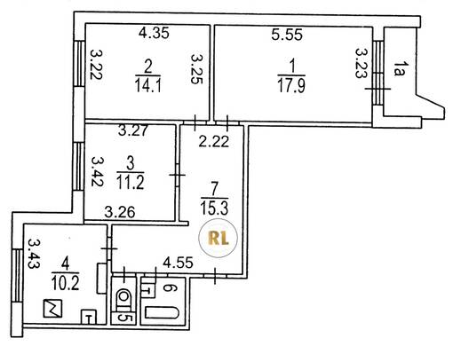
База каталог, Кол-во подъездов: 5, П-44, Москва, Орехово-Борисово Южное, Площадь парковки: 0, Пассажирский лифт: 10, От метро: 790, Южный, нет, Наименьшее кол-во этажей: 1, Наибольшее кол-во этажей: 17, Домодедовская, Кол-во помещений: 339, Кол-во нежилых помещений: 1, Год ввода в эксплуатацию: 1987, 3-комн, Кол-во жилых помещений: 338, В, дом 11/4, нет, да, да, да, да, да, Отсутствует, Грузовых лифтов: 0, Год постройки: 1987, Воронежская улица, 37.730751, 55.610397
Свяжитесь со мной на счет цены
10 дн.
T55S610397L37S730751T

На карте


Условия сделки

Источник


Старт продаж

Возможно заинтересует