Top.Mail.Ru

Воронежская ул., д. 48, к. 1

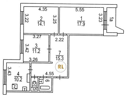
База каталог, Кол-во подъездов: 5, П-44, Москва, Орехово-Борисово Южное, Пассажирский лифт: 5, От метро: 750, Южный, да, Наименьшее кол-во этажей: 17, Наибольшее кол-во этажей: 17, Зябликово, Кол-во помещений: 338, Кол-во нежилых помещений: 0, Год ввода в эксплуатацию: 1997, 3-комн, Кол-во жилых помещений: 338, дом 48, корпус 1, нет, да, да, да, да, да, Грузовых лифтов: 5, Год постройки: 1997, Воронежская улица, 37.755347, 55.610646
19 500 000 Р
10 дн.
T55S610646L37S755347T
+

На карте


Условия сделки

Источник


Старт продаж