Top.Mail.Ru

Изваринская ул., д. 1

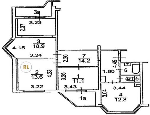
База каталог, Наибольшее кол-во этажей: 17, Отсутствует, П-44T, Москва, Внуково, Площадь парковки: 0, Пассажирский лифт: 2, Западный, нет, Наименьшее кол-во этажей: 17, Кол-во помещений: 130, Год ввода в эксплуатацию: 2006, Кол-во подъездов: 2, Кол-во нежилых помещений: 2, 3-комн, Кол-во жилых помещений: 128, E, дом 1, Имеется, Грузовых лифтов: 2, Год постройки: 2006, Изваринская улица, 37.254330, 55.610834
Свяжитесь со мной на счет цены
10 дн.
T55S610834L37S254330T

На карте


Условия сделки

Источник


Старт продаж

Возможно заинтересует