Top.Mail.Ru

Аэрофлотская ул., д. 1/7

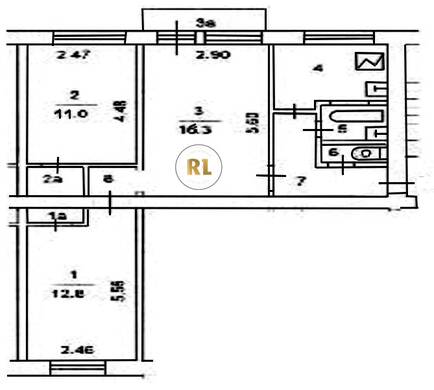
База каталог, Кол-во подъездов: 4, I-511, Москва, Внуково, Площадь парковки: 0, Пассажирский лифт: 0, От метро: 4400, Западный, нет, Наименьшее кол-во этажей: 5, Наибольшее кол-во этажей: 5, Рассказовка, Кол-во помещений: 80, Кол-во нежилых помещений: 5, Год ввода в эксплуатацию: 1962, 3-комн, Кол-во жилых помещений: 75, D, дом 1/7, нет, нет, нет, нет, нет, нет, Имеется, Грузовых лифтов: 0, Год постройки: 1962, Аэрофлотская улица, 37.289894, 55.610946
Свяжитесь со мной на счет цены
10 дн.
T55S610946L37S289894T

На карте


Условия сделки

Источник


Старт продаж

Возможно заинтересует