Top.Mail.Ru

Воронежская ул., д. 52, к. 1

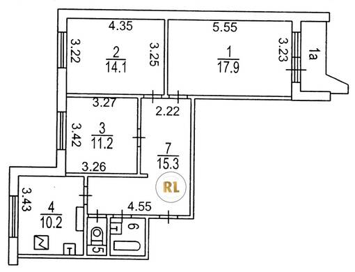
База каталог, Кол-во подъездов: 6, П-44, Москва, Орехово-Борисово Южное, Пассажирский лифт: 6, От метро: 910, Южный, да, Наименьшее кол-во этажей: 17, Наибольшее кол-во этажей: 17, Зябликово, Кол-во помещений: 406, Кол-во нежилых помещений: 0, Год ввода в эксплуатацию: 1985, 3-комн, Кол-во жилых помещений: 406, дом 52, корпус 1, нет, да, да, да, да, да, Грузовых лифтов: 6, Год постройки: 1985, Воронежская улица, 37.757754, 55.611180
Свяжитесь со мной на счет цены
10 дн.
T55S611180L37S757754T

На карте


Условия сделки

Источник


Старт продаж

Возможно заинтересует