Top.Mail.Ru

Воронежская ул., д. 54

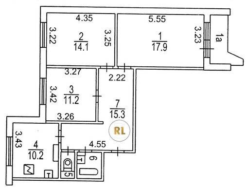
База каталог, Кол-во подъездов: 3, П-44, Москва, Орехово-Борисово Южное, Пассажирский лифт: 3, От метро: 1060, Южный, да, Наименьшее кол-во этажей: 17, Наибольшее кол-во этажей: 17, Зябликово, Кол-во помещений: 203, Кол-во нежилых помещений: 0, Год ввода в эксплуатацию: 1985, 3-комн, Кол-во жилых помещений: 203, дом 54, нет, да, да, да, да, да, Грузовых лифтов: 3, Год постройки: 1985, Воронежская улица, 37.759641, 55.611323
Свяжитесь со мной на счет цены
10 дн.
T55S611323L37S759641T

На карте


Условия сделки

Источник


Старт продаж

Возможно заинтересует